HOME PLAN | Bali
แบบบ้าน สไตล์บาหลี
||||| ACTIVITY STYLE ||||| BALI ||||| CONTEMPORARY ||||| MODERN ||||| NEW AUSTRALIAN ||||| TROPICAL ||||| TROPICAL CLASSIC ||||| FACTORY & OFFICE |||||
HOME PLAN | MAX 2111
Bali Style
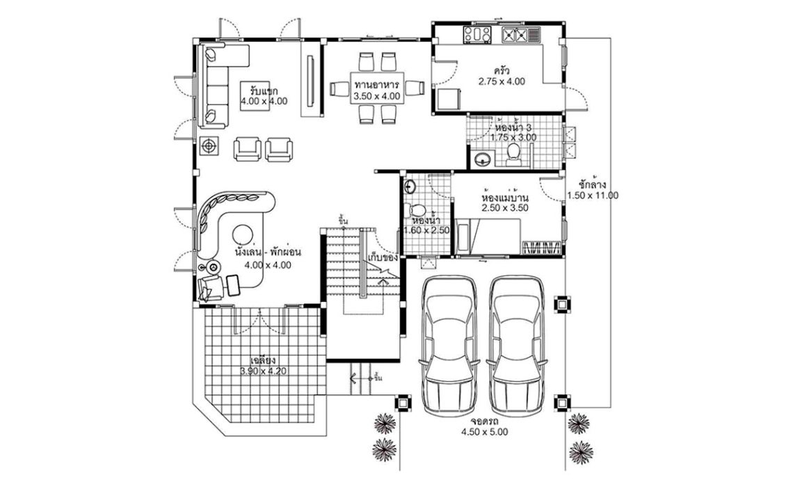
แบบบ้าน 2 ชั้น
3 ห้องนอน • 4 ห้องน้ำ • ที่จอดรถ 2 คัน
พื้นที่ดินไม่น้อยกว่า 62 ตารางวา
























